Overview
RERA : RC/REP/HARERA/GGM/1054/786/2026/26
SOBHA Crescent is an ultra-luxury residential development strategically located on Golf Course Extension Road, Sector 63A — one of Gurugram's most prestigious and rapidly growing residential corridors. Registered under HARERA (RERA No. RC/REP/HARERA/GGM/1054/786/2026/26), the project is developed by SOBHA Limited, India's most trusted name in luxury real estate, known for its unique backward-integrated construction model that ensures unmatched quality and timely delivery.
Spread across 11.99 acres with Phase I comprising 2 iconic high-rise towers and 336 exclusive residences, SOBHA Crescent offers thoughtfully designed 2, 3 & 4 BHK homes ranging from 1,940 sq. ft. to 2,966 sq. ft. With only 4 homes per floor, every residence is a corner home offering breathtaking, unobstructed views of the majestic Aravalli Hills, lush landscaped greens, and the city skyline — flooded with natural light and ventilation.
Residents enjoy a world-class lifestyle with amenities including a 25/50M lap & leisure pool, 65M skating rink, 430M nature trail, reflexology walk, yoga & meditation lawn, bio pond, The Jetty, kids' bay, pet park, alfresco decks, and beautifully curated parks and plazas — creating a complete lifestyle ecosystem within the community.
With seamless connectivity to NH-48, Sohna Road, Golf Course Road, Rapid Metro, and Cyber City, and easy access to top institutions like DPS International School, Medanta Hospital, Artemis Hospital, and leading MNC offices including Google and IBM, SOBHA Crescent is more than just a home — it is a statement of refined living and long-term investment value in the heart of New Gurugram.
Read MoreAmenities














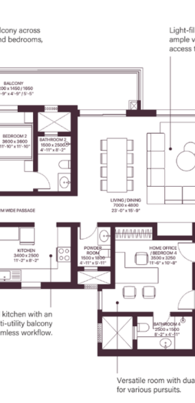
Floor Plans & Layout
Price List
| Unit Type | Area | Price |
|---|---|---|
| 3 BHK | 2300 Sq.ft | ₹ 5.75 Cr Onwards |
| 4 BHK | 2700 Sq.ft | ₹ 6.75 Cr Onwards |

